Description
Introducing our exquisite wooden house, ADELE, crafted from high-quality slow conifer timber. This residence perfectly blends traditional charm with modern comfort, making it a delightful choice for those seeking a cozy yet stylish living space.
Key Features:
- Spacious Living Area:
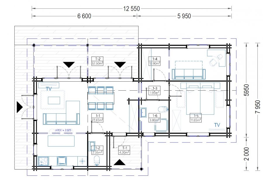
A generous 28 m² living room, complemented by an open kitchen area, ideal for both relaxation and entertaining. - Private Bedrooms:
Two expansive bedrooms designed to ensure optimal privacy for residents and guests. - Terrace Access:
Three double-door entrances leading to the terrace, providing seamless movement and connection to the outdoor space. - Abundant Natural Light:
Numerous large windows and doors strategically placed to maximize natural light throughout the home. - Comfortable Bathroom:
A dedicated bathroom area that enhances residential comfort. - Optional Terrace Upgrade:
An opportunity to enhance your living experience with an optional 32.5 m² terrace (not included in the base price).
The ADELE wooden house stands out for its quality and craftsmanship, making it an ideal choice for anyone looking to embrace a traditional wooden residence while still enjoying modern conveniences. Consider the optional terrace to elevate your comfort and outdoor living potential!
Specifications
| Wall | 44+44 mm |
| Material | Slow grown conifer timber |
| Doors | 1 * 85 cm x 192 cm ( Entrance ), 4 * 85 x 192 cm (internal) |
| Roof Area | 110 m² |
| Floor area | 68 m² |
| Windows | 3* 70 cm x 105 cm; 5* 138 cm x 105 cm; 2* 85 cm x 192 cm (vitrine); 3* 161 cm x 192 cm (balcony door ); |
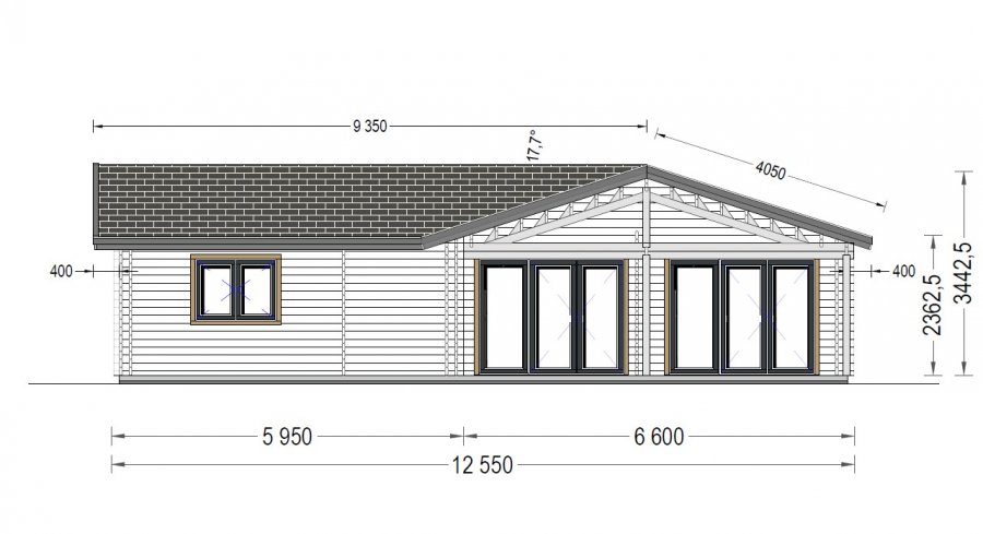
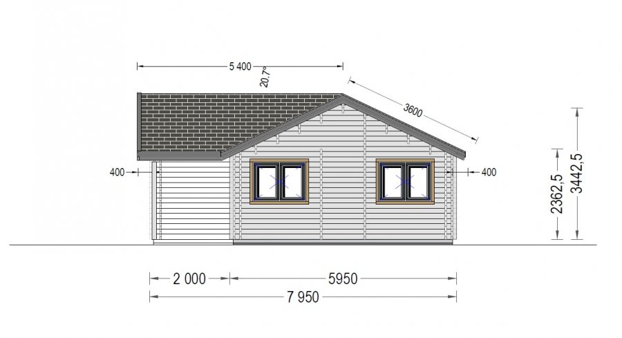
| Eaves height | 236,25 cm |
| Ridge Height | 344,25 cm |
| Roof | 20 mm tongue & groove boards |
| Floor | 20 mm tongue & groove boards |
| Total Number of Rooms | 6 |
| External dimensions (WxD), Metric | 1255 x 795 cm |
| Roof Covering Material | Optional |
| Anti Rot Warranty | 10 Years |
| Wood Treatment | Optional |
| Roof Overhang (Front, Side, Back) | 40 cm |
| Living space | 58,3 m² |
| Bedrooms | 2 |










