Description
This item comes in a flat pack and includes all windows, doors, roof and floor boards.
An installation manual shows the procedure of the built.
All 34mm (thickness of the wall structure)houses come with single glazed windows and all 44mm and above come with double glazed.
Vat is included in price
Installation Service can be offered from our subcontractors from 50 euros per squere meter.
For more information please contact us on our chat app or email us on info@demetriouhomes.com
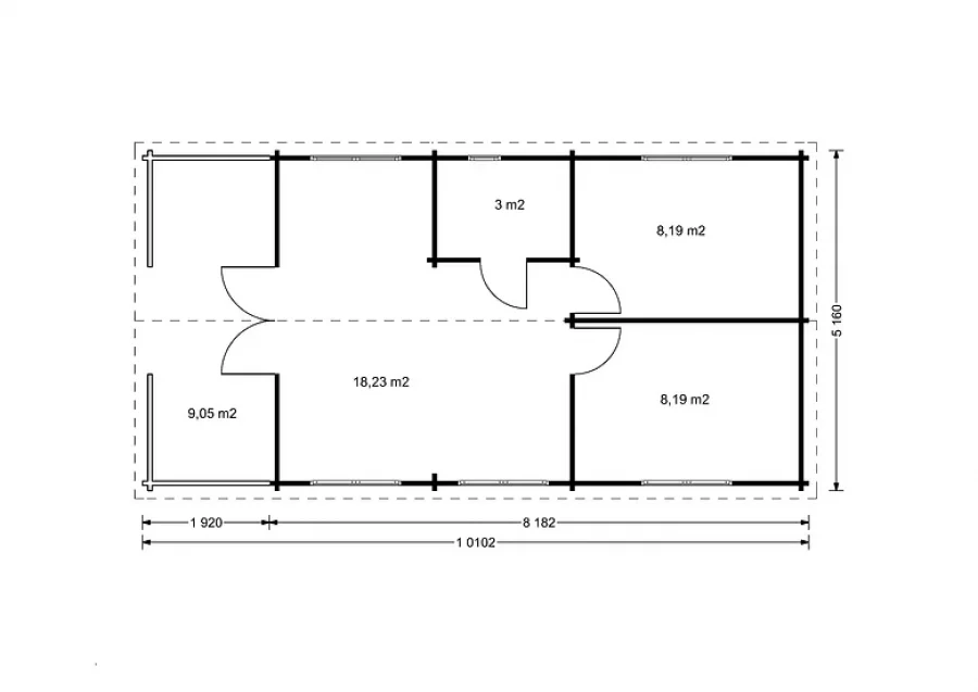
Specifications
| Bedrooms | 2 |





