Description
The price includes:
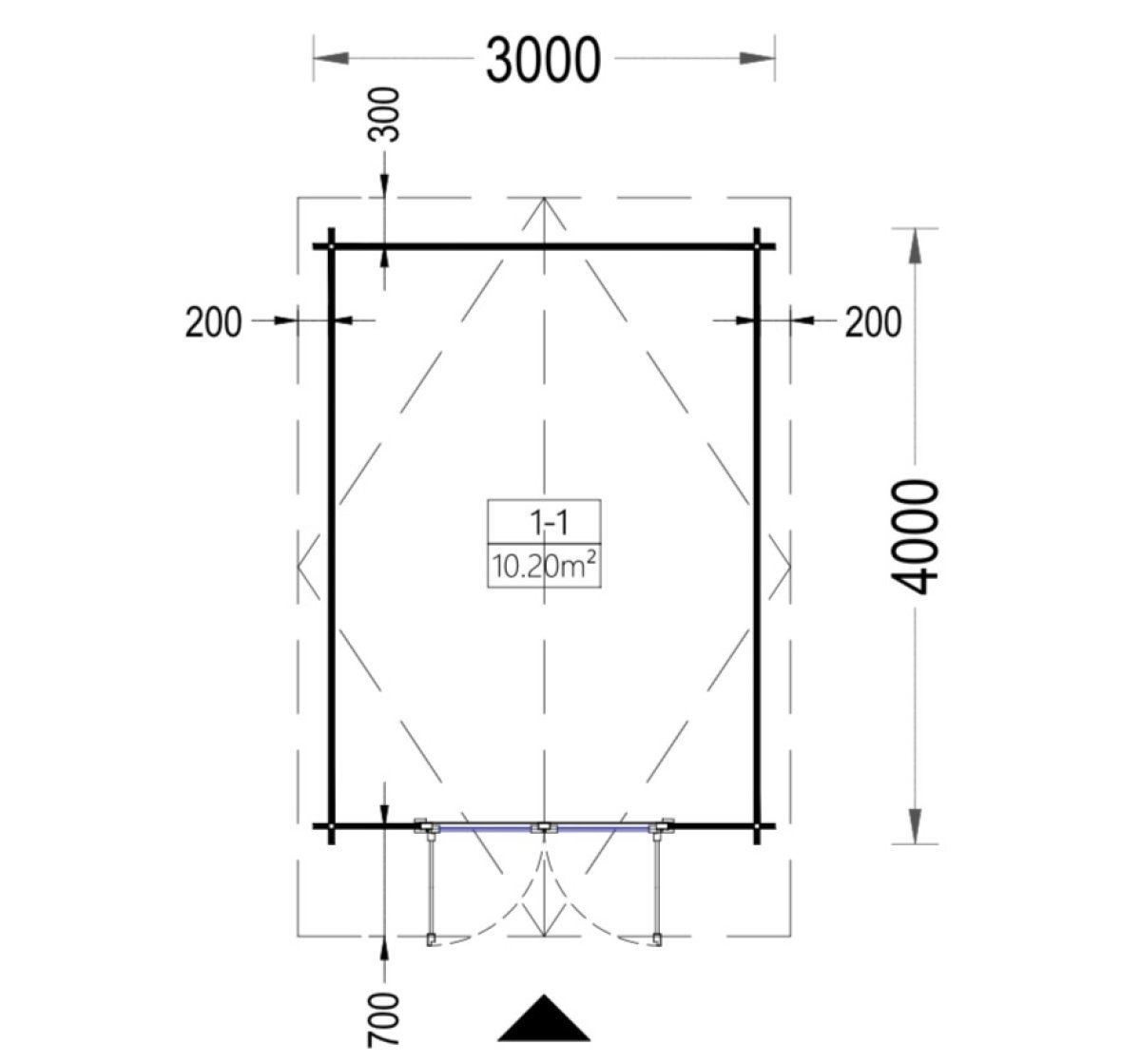
- Peter 3x4 meters with 34mm walls and singled glazed windows and doors
- Vat
Does not include:
Concrete or steel foundation
Electrical installation
Installation
Varnish
Roof coverage
Extra Services
- Steel or concrete foundation.
- Electrical installation.
- Plumping installation
- Kitchen installation
- Bathroom fittings
- Modifications and additions









